Réinitialiser

Vos résultats de recherche

Chalet accessible quatre types de handicap (4/6 pers) avec activités adaptées

,
Champagnat, , La Jonchère
Nouveauté
Campagne
Maison/villa/chalet/gîte
| 2 Chambres|
Infos accessibilité

Bienvenue dans notre village destiné à tous types de handicap avec Label Tourisme et Handicap

Le village ouvrira ses grandes portes à partir du 4 juillet 2026, à partir d’avril il y aura déjà trois chalets disponibles.
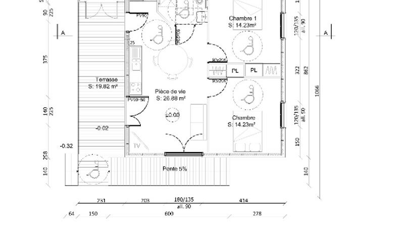
Venez profiter de vos vacances dans notre chalet en bois avec deux chambres accessibles PMR, banquette convertible (deux personnes), kitchenette et salle de bain, toilettes et terrasse totalement accessibles PMR. Chaque chambre dispose de deux lits simples, accessibles PMR. Nous pouvons donc accueillir quatre personnes en fauteuil roulant dans chaque chalet.

Par ailleurs, il est possible d’ajouter un lit médicalisé ou un lève personne sur demande (un de chaque est disponible directement dans le village, si ce matériel est déjà réservé, nous vous transmettrons le contact d’un prestataire livrant du matériel médical sous fourniture d’ordonnance).

Les chalets sont encore en travaux pour le moment, les mesures et photos sont donc approximatives et non contractuelles (elles seront validées à l’ouverture du village). Pour tous besoins spécifiques, n’hésitez pas à nous le faire savoir.

Nous avons aussi un hébergement qui est destiné aux aidants avec des chambres supplémentaires. Pour accueillir par exemple des encadrants, saisonniers, animateurs et aidants dans notre ancienne grange, complètement rénovée. Ces chambres sont à réserver en supplément de chaque chalet à 20 euros par personne par nuit (sur demande préalable via la messagerie), ces chambres sont de 4 personnes maximum et peuvent être partagées, possibilité de la privatiser pour 80€ par personne.
Ces chambres ne sont pas accessibles PMR, ont leur propre kitchenette, salle de bain et terrasse partagées. C’est un vrai lieu de répit pour les aidants où on peut s’isoler.

Nous vous offrons de vraies vacances pour tous. Nous pourrons vous proposer grâce à notre association des services à la personne, du matériel adapté aux loisirs de plein air pour les enfants et les adultes handicapés, des animations adaptées en sorties ou sur place. Mais aussi et surtout une présence attentive de l’équipe et de l’association, pour que chaque membre de la famille puisse bénéficier d’un vrai repos.
Un lieu où il fait bon venir se poser, se reposer : un accueil chaleureux, bienveillant et respectueux et aussi des vraies vacances pour les aidants.
Venez découvrir notre village de vacances avec sa placette sous les tilleuls, le jardin potager, une aire de jeux enfants et adultes (pétanque, jeux de ballons), deux Quadrix (accessible PMR), salle polyvalente et une mini-ferme. Ces activités sont à réserver sur place, pour plus d’informations : nous contacter.

Vous êtes nombreux ? Nous avons d’autres chalets disponibles sur le village (dont certains sont jumelables), vous pouvez accéder aux autres annonces via notre profil.

Dans ce cas, une salle de restauration accessible quatre types de handicap est disponible pour manger tous ensemble et si vous souhaitez profiter de notre petit déjeuner, demi-pension ou pension complète ? C’est possible !
Voici nos tarifs pour nos pensions repas :
– Petit déjeuner : 6.50€/jour/personne
– Demi-pension : 23.50€/jour/personne
– Pension complète : 40.50€/jour/personne
– Repas midi et soir : 17€/jour/personne
Vous souhaitez réserver ces suppléments repas, faites nous la demande via la messagerie pour l’ajouter à votre séjour.

Le village de vacances pour tous : tous c’est qui ?
*Mixité entre touristes valides et personnes en perte d’autonomie, âgées ou en situation de handicap, malades chroniques/mentaux pour mieux se connaître.
*Touristes, les clubs cyclistes, les clubs handisport, les handi-sportifs, les familles pourront se partager les lieux, pratiquer ensemble les activités de pleine nature: découverte du patrimoine, balades, randos, baignades…

Tourisme durable
Label accueil vélo
Label Tourisme et handicap

La location se fait du samedi au samedi (autres situations : nous contacter).

Voir plus
Détails du bien
Statut du bien: Nouveauté
Référence du bien: 33120
Surface: 60 m2
Pièces: 3
Chambres: 2
Salles de bain: 1
Nombre de WC : 1
Piscine: Non
Balcon ou terrasse: Oui
Activité de ski à proximité: Non
Distance max aux pistes de ski (en mètres): 0
Lieu de baignade à proximité: Oui
Distance max au lieu de baignade (en mètres): 4400
Centre-ville / commerces à proximité: Oui
Distance max au centre-ville/commerces (en mètres): 12400
Animaux autorisés : Non
Numéro d'enregistrement: 0
Place handicap (ou faisant au moins 3,30 m de large) : Oui
Distance de la place handicap à l'entrée (en mètres) : 20
Place handicap réservée : Oui
Revêtement : Stable/régulier
Pente du chemin d'accès < 5% : Oui
Possibilité de faire une pause sur le chemin (banc, muret…) : Oui
L'accès au logement se fait par : Entrée directe dans le logement
Portail / portes à franchir entre la voiture et l'entrée du logement : Non
Rétrécissement < 90 cm sur le chemin d'accès : Non
Couloir pour accéder au logement : Non
Virages dans le couloir : Non
Largeur de passage au point le plus étroit du chemin d'accès (avant la porte d'entrée du logement) en cm : 130
Nombre de marches < 130 cm de profondeur (pour le groupe qui comporte le plus de marches) : 0
Nombre de marches > 130 cm de profondeur (pour le groupe qui comporte le plus de marches) : 0
Autre(s) obstacle(s)/seuil à franchir : Non
Hauteur de l'obstacle/seuil en cm : 0
Main courante sur au moins un côté des marches : Oui
Rampe d'accès : Oui
Etage : 0
Ascenseur : Non mais pas besoin pour accéder au logement
Largeur de l'intérieur en cm : 0
Profondeur de l'intérieur en cm : 0
Largeur de l'ouverture des portes en cm : 0
L'entrée la plus accessible du logement est : Entrée principale
Nombre de marches < 130 cm de profondeur : 0
Nombre de marches > 130 cm de profondeur : 0
Autre(s) obstacle(s)/seuil à franchir : Non
Hauteur de l'obstacle/seuil en cm : 1
Si le seuil forme une petite marche à l'extérieur, sa profondeur en cm est de : 0
Main courante sur au moins un côté des marches : Pas de marches
Rampe d'accès : Oui
Largeur de passage des portes en cm : 83
Ouverture possible de l'extérieur pour les entrées secondaires : Oui
Nombre de marches : 0
Main courante sur au moins un côté des marches : Pas de marches
Présence d'une porte : Non
Couloir pour accéder à la cuisine : Non
Virages dans le couloir : Non
Largeur de passage en cm à l'endroit le plus étroit (couloir, virages, porte) : 90
Commentaire : Tout est aux normes PMR
Aire de rotation (150 cm diamètre) : Oui
Espace libre sous l'évier : Oui
Espace libre sous le plan de cuisson : Oui
Hauteur four / micro ondes en cm : 110
Hauteur rangement ustensiles et vaisselle en cm : 110
Fenêtre accessible à un fauteuil roulant (passage d'au moins 90 cm et hauteur de poignée <130 cm) ? : Oui
Interrupteurs accessibles pour une personne en fauteuil roulant (hauteur <130 cm) ? : Oui
Commentaire : Nous avons une salle de restauration, intégralement accessible quatre types de handicap , avec une terrasse ombragée où vous pouvez profiter de nos services de restauration (petit-déjeuner et repas).
Pièce dans laquelle se trouve la table pour manger : Cuisine ouverte/salon
Hauteur du plateau de la table > 80 cm : Oui
Espace sous la table d'au moins 65 cm de hauteur, 60 cm de largeur et 30 cm de profondeur : Oui
Largeur de passage, en cm, pour accéder à la table : 130
Commentaire : L'espace repas est un espace ouvert.
Nombre de marches : 0
Main courante sur au moins un côté des marches : Pas de marches
Présence d'une porte : Non
Couloir pour accéder à la pièce à vivre : Non
Virages dans le couloir : Non
Largeur de passage en cm à l'endroit le plus étroit (couloir, virages, porte) : 140
Commentaire : La pièce à vivre (sans couloir, sans portes, très peu de mobilier) fait 27m2. Elle comprend la cuisine ouverte, le salon télévision, la table à manger et accès direct à la terrasse par une porte fenêtre (140cm).
Aire de rotation (150 cm de diamètre) : Oui
Largeur du passage pour accéder à la TV, en cm : 140
Fenêtre accessible à un fauteuil roulant (passage d'au moins 90 cm et hauteur de poignée <130 cm) ? : Oui
Interrupteurs accessibles pour une personne en fauteuil roulant (hauteur <130 cm) ? : Oui
Nombre de marches : 0
Main courante sur au moins un côté des marches : Pas de marches
Largeur de passage de la porte (ou de l'entrée) en cm : 90
Couloir pour accéder à l'espace couchage : Non
Virages dans le couloir : Non
Largeur de passage à l'endroit le plus étroit, couloir / virages, en cm : 90
Type d'espace : Une chambre
Nombre de couchages dans cet espace : 2
Répartition des couchages dans cet espace (nombre de lits simples, doubles, superposés...) : La chambre fait 15m2. Il y a deux lits simples. * possibilité de lits médicalisés * possibilité de jumeler les lits pour un couchage de 180m accessible PMR
Dimensions du lit le plus accessible (lxLxH) en cm : 90x200x40
Largeur du passage, en cm, pour accéder à ce lit : 150
Possibilité de déplacer le(s) couchage(s) de manière à agrandir la largeur de passage : Oui
Dans ce cas, largeur de passage possible, en cm : 150
Présence d'un lit médicalisé ou possibilité d'en ajouter un (215 cm*97 cm), tout en laissant un espace d'au moins 75 cm pour y accéder: Oui
Aire de rotation (150 cm de diamètre) : Oui
Fenêtre accessible à un fauteuil roulant (passage d'au moins 90 cm et hauteur de poignée <130 cm) ? : Oui
Interrupteurs accessibles pour une personne en fauteuil roulant (hauteur <130 cm) ? : Oui
Commentaire : *possibilité de lève personne* *possibilité de lits médicalisés* L'aire de rotation de 150cm dans la chambre est valable uniquement quand les deux lits simples sont positionnés des deux côtés de la chambre (de sorte à avoir l'aire de rotation au milieu)
Nombre de marches : 0
Main courante sur au moins un côté des marches : Pas de marches
Largeur de passage des portes/entrée en cm : 90
Couloir pour accéder à l'espace couchage : Non
Virages dans le couloir : Non
Largeur de passage à l'endroit le plus étroit, couloir / virages, en cm : 90
Type d'espace : Une chambre
Répartition des couchages dans cet espace (nombre de lits simples, doubles, superposés...) : La chambre fait 15m2. Il y a deux lits simples. * possibilité de lits médicalisés * possibilité de jumeler les lits pour un couchage de 180m accessible PMR
Dimensions du lit le plus accessible (lxLxH) en cm : 90x200x40
Largeur du passage, en cm, pour accéder à ce lit : 150
Possibilité de déplacer le(s) couchage(s) de manière à agrandir la largeur de passage : Oui
Dans ce cas, largeur de passage possible, en cm : 150
Présence d'un lit médicalisé ou possibilité d'en ajouter un (215 cm*97 cm), tout en laissant un espace d'au moins 75 cm pour y accéder: Oui
Fenêtre accessible à un fauteuil roulant (passage d'au moins 90 cm et hauteur de poignée <130 cm) ? : Oui
Interrupteurs accessibles pour une personne en fauteuil roulant (hauteur <130 cm) ? : Oui
Aire de rotation (150 cm de diamètre) : Oui
Commentaire : *possibilité de lève personne* *possibilité de lits médicalisés* L'aire de rotation de 150cm dans la chambre est valable uniquement quand les deux lits simples sont positionnés des deux côtés de la chambre (de sorte à avoir l'aire de rotation au milieu)
Nombre de marches : 20
Largeur de passage des portes/entrée en cm : 0
Largeur de passage à l'endroit le plus étroit, couloir / virages, en cm : 0
Commentaire : Dans le village vacances il y a possibilité d'un hébergement pour les personnes accompagnantes/aidantes (si besoin) au prix de 20 euros la nuitée. Pas accessible PMR.
Type d'espace : Une chambre
Répartition des couchages dans cet espace (nombre de lits simples, doubles, superposés...) : deux lits superposés (quatre couchages)
Dimensions du lit le plus accessible (lxLxH) en cm : 90x200
Largeur du passage, en cm, pour accéder à ce lit : 0
Possibilité de déplacer le(s) couchage(s) de manière à agrandir la largeur de passage : Oui
Dans ce cas, largeur de passage possible, en cm : 0
Commentaire : Cet hébergement n'est pas accessible PMR et spécifiquement pour les personnes aidantes (répit). Il y a une salle de bain, kitchenette et terrasse privé si vous voulez vous isoler un peu du village.
Nombre de marches : 0
Largeur de passage des portes/entrée en cm : 0
Largeur de passage à l'endroit le plus étroit, couloir / virages, en cm : 0
Largeur du passage, en cm, pour accéder à ce lit : 0
Dans ce cas, largeur de passage possible, en cm : 0
Présence d'une baignoire : Non
Présence d'une douche : Oui
Présence d'une douche italienne : Oui
Si une ou plusieurs douches, hauteur du ressaut le moins élevé en cm : 0
Nombre de marches : 0
Main courante sur au moins un côté des marches : Pas de marches
Largeur de passage de la porte en cm : 90
Couloir pour accéder à la salle de bain : Non
Virages dans le couloir : Non
Largeur de passage à l'endroit le plus étroit (couloir / virages) en cm : 90
Type d'installation : Douche italienne
Largeur de passage, en cm, pour accéder à la baignoire / douche : 0
Barre d'appui dans la baignoire/douche : Oui
Hauteur en cm du ressaut de la douche : 0
Aire de rotation (150 cm diamètre) dans la douche : Oui
Siège douche intégré ou chaise douche à roulettes : Oui
Largeur de l'entrée de la douche en cm : 90
Largeur de l'intérieur de la douche en cm : 90
Profondeur de l'intérieur de la douche en cm : 90
Hauteur robinetterie dans la douche (en cm): 110
Aire de rotation (150 cm diamètre) dans la salle de bain : Oui
Espace vide sous le lavabo : Oui
Hauteur du lavabo (du sol au dessus du lavabo) en cm : 70
Fenêtre accessible à un fauteuil roulant (passage d'au moins 90 cm et hauteur de poignée <130 cm) ? : Non
Interrupteurs accessibles pour une personne en fauteuil roulant (hauteur <130 cm) ? : Oui
Commentaire : La douche à l'italienne n'a pas de paroi, mais des rideaux.
Nombre de marches : 0
Largeur de passage de la porte en cm : 0
Largeur de passage à l'endroit le plus étroit (couloir / virages) en cm : 0
Largeur de passage, en cm, pour accéder à la baignoire / douche : 0
Hauteur en cm du ressaut de la douche : 0
Largeur de l'entrée de la douche en cm : 0
Largeur de l'intérieur de la douche en cm : 0
Profondeur de l'intérieur de la douche en cm : 0
Hauteur robinetterie dans la douche (en cm): 0
Hauteur du lavabo (du sol au dessus du lavabo) en cm : 0
Nombre de marches : 0
Main courante sur au moins un côté des marches : Pas de marches
Largeur de passage de la porte en cm : 90
Couloir pour accéder aux toilettes : Non
Virages dans le couloir : Non
Largeur de passage à l'endroit le plus étroit (couloir / virages) en cm : 90
Hauteur de la cuvette en cm : 50
Espace à côté de la cuvette, de 80 cm de largeur et 130 cm de profondeur : Oui
Aire de rotation (150 cm de diamètre) : Oui
Barre d'appui latérale : Oui
Interrupteurs accessibles pour une personne en fauteuil roulant (hauteur <130 cm) ? : Oui
Commentaire : Vu que nous avons plusieurs chalets, les toilettes peuvent être accessibles par la gauche ou par la droite. Veuillez nous préciser votre besoin au moment de la réservation. Les toilettes se trouvent dans la salle de bain.
Largeur de passage de la porte en cm : 140
Présence d'un seuil : Non
Hauteur du seuil en cm : 0
Si le seuil forme une petite marche à l'extérieur, sa profondeur en cm est de : 0
Commentaire : Il y a une porte d'entrée de 90cm (passage utile 83cm) et porte fenêtre de 140cm.
Balcon/terrasse d'au moins 90 cm de large et 130 cm de profondeur : Oui
Aire de rotation (150 cm de diamètre) : Oui
Commentaire : La terrasse fait 24m2. Pour les deux chalets jumelables par la terrasse il y aura donc une terrasse de 48m2.
Nombre de marches inévitables < 130 cm de profondeur (pour le groupe qui comporte le plus de marches) : 0
Nombre de marches inévitables > 130 cm de profondeur (pour le groupe qui comporte le plus de marches) : 0
Largeur intérieur ascenseur en cm : 0
Profondeur intérieur ascenseur en cm : 0
Largeur ouverture des portes de l'ascenseur en cm : 0
Largeur de passage au point le plus étroit sur le chemin d'accès, en cm : 0
Hauteur de l'obstacle/seuil en cm : 0
Hauteur du ressaut du pédiluve en cm : 0
Largeur minimum du passage, en cm, pour accéder au bassin : 0
Profondeur du bassin au point le moins profond en cm : 0
Couchages dans Chambre(s)
Chambre 1
2 Lit simple
Chambre 2
2 Lit simple
Caractéristiques
Divers
Accès Wi-fi
Air conditionné
Draps inclus
Linge de toilette inclus
Logement fumeur
Ménage inclus
Vue mer
Équipements extérieurs
Balcon/Terrasse
Barbecue
Jacuzzi/Sauna
Jardin
Mobilier de jardin
Parking
Piscine
Terrain clos
Équipements intérieurs
Chaise haute
Cheminée/Poêle
Fer à repasser
Four/Micro ondes
Lave linge
Lave vaisselle
Lit bébé
Sèche cheveux
Sèche linge
Télévision
Adresse du bien
Adresse: Les informations de localisation exactes sont fournies après la confirmation d'une réservation.
Ville :
Quartier :
Pays: France
État: CREUSE
Code postal: 23190
Pays: France

Sur la carte

Disponibilité

février 2026
L M M J V S D
 1
120 €
2
120 €
3
120 €
4
120 €
5
120 €
6
120 €
7
120 €
8
120 €
9
120 €
10
120 €
11
120 €
12
120 €
13
120 €
14
120 €
15
120 €
16
120 €
17
120 €
18
120 €
19
120 €
20
120 €
21
120 €
22
120 €
23
120 €
24
120 €
25
120 €
26
120 €
27
120 €
28
120 €
 
mars 2026
L M M J V S D
 1
120 €
2
120 €
3
120 €
4
120 €
5
120 €
6
120 €
7
120 €
8
120 €
9
120 €
10
120 €
11
120 €
12
120 €
13
120 €
14
120 €
15
120 €
16
120 €
17
120 €
18
120 €
19
120 €
20
120 €
21
120 €
22
120 €
23
120 €
24
120 €
25
120 €
26
120 €
27
120 €
28
120 €
29
120 €
30
120 €
31
120 €
 
passé
aujourd’hui
réservé
Conditions particulières
Tabagisme autorisé
Animaux domestiques autorisés
Fête autorisée
Enfants autorisés
En cas d'annulation dans les 24 heures suivant la confirmation de votre réservation, le montant de la réservation (le cas échéant) vous sera remboursé.
En cas d'annulation après les 24 heures jusqu'au 42e jour avant l'arrivée 30% du montant total.
entre 41 et 31 jours avant l'arrivée 60 % du montant total
entre 30 et 2 jours avant l'arrivée 90% du montant total
entre 1 et 0 jours avant l'arrivée 100% du montant total
Le tabac est autorisé en extérieur. Pour les fêtes nous disposons d'une salle d'activité équipée ouverte à tous que vous pouvez privatiser (si besoin).
120 € par nuit
×

Envoyer une demande de réservation

Voyageurs
Adultes
18 ans ou plus
0
Enfants
2 à 12 ans
0
Bébés
Moins de 2 ans
0
Fermer
Frais de ménage
100 €
Frais unique
draps + serviettes
10 €
Par personne

Ajouter aux favoris
Contacter le propriétaire
Partager
Vérifié

Guylaine et Femke

Voir le profil du propriétaire
Contacter le propriétaire
x
120 € par nuit