Réinitialiser

Vos résultats de recherche

Appartement 4 personnes avec vue sur le Mont Ventoux

,
Montségur-sur-Lauzon, , Quartier Crochet
Nouveauté
Appartement dans maison
| 1 Chambre|
Infos accessibilité

Appartement de 50m² lumineux, en rez de chaussée d’un mas en Drôme provençale pouvant accueillir 4 personnes. Accessible aux personnes à mobilité réduite.
Piscine 4 x 12m , eau salée, chauffée, avec vue sur les Alpes, ouverte de Mai à Octobre selon météo. Plusieurs marches pour y accéder.

La piscine et le jardin vous sont réservés, le second logement à l’étage de la maison n’est jamais loué quand le rez-de-chaussée est occupé.

Les prix affichés sont basés sur le prix pour 1 nuit. Les tarifs sont dégressifs pour tout séjour de 2 nuits et plus : contactez moi via la messagerie pour connaître le prix de votre séjour, en précisant bien les dates souhaitées

Située à Montségur sur Lauzon, petit village à 2km avec commerces essentiels, thérapeutes. Mas adossé à la garrigue, fait face à la plaine, ainsi que La Lance, le Ventoux et Dentelles de Montmirail. Vous aurez l’usage exclusif de la piscine et du jardin.
En rez de chaussée avec terrasse :
1 salon /chambre avec lit en 160 et 1 chambre/cuisine équipée, avec 2 lits superposés dans une alcôve de la cuisine.
Salle de bain avec baignoire, douche à l’italienne et wc, avec 2 portes afin que chaque couchage y ait un accès.
Linge de lit et de toilette fournis, hors draps de baignade.
Barbecue gaz
Eau de source communale au robinet ! Pays de la truffe et du vin !
Location 5 jours minimum en juillet et Août. Hors été location 2 nuits minimum.
Lieu idéal si vous recherchez le calme, la nature et le confort, dans une région qui offre des distractions sportives, culturelles et comporte des villages typiques, des sites romains, des châteaux…
Départ de longues balades dans la colline parfumée et promenades à vélo sur les petites routes environnantes.
Vaste extérieur arboré de fruitiers. Selon la période, vous pourrez déguster les fruits de saison, gorgés de soleil et de vitamines, directement sur les arbres et arbustes.
Grand abri pour jouer au ping-pong ou se protéger du soleil.
Places de stationnement sous les chênes.

Dans le triangle Grignan (village de coeur de la Marquise de Sévigné), Suze la Rousse, St Paul Trois Châteaux et à 27 km de Nyons, Vaison la Romaine, Orange et guère plus loin, les Gorges de l’Ardèche.

Les animaux sont les bienvenus (2 animaux maximum) avec supplément à cocher. Les animaux d’assistance sont les bienvenus gratuitement.

 

Il est possible de réserver l’ensemble de la maison, attention cependant l’étage n’est accessible que par des escaliers. Voire annonce « Maison 15 personnes avec piscine en Drôme provençale »

Voir plus
Détails du bien
Statut du bien: Nouveauté
Référence du bien: 37424
Surface: 50 m2
Pièces: 2
Chambres: 1
Salles de bain: 1
Nombre de WC : 1
Piscine: Oui
Balcon ou terrasse: Oui
Activité de ski à proximité: Non
Distance max aux pistes de ski (en mètres): 0
Lieu de baignade à proximité: Oui
Distance max au lieu de baignade (en mètres): 2000
Centre-ville / commerces à proximité: Oui
Distance max au centre-ville/commerces (en mètres): 2000
Animaux autorisés : Oui
Place handicap (ou faisant au moins 3,30 m de large) : Oui
Distance de la place handicap à l'entrée (en mètres) : 5
Place handicap réservée : Oui
Commentaire : Possibilité de se garer devant le carport ou dessous pour être abrité
Revêtement : Stable/régulier
Pente du chemin d'accès < 5% : Non
Possibilité de faire une pause sur le chemin (banc, muret…) : Oui
L'accès au logement se fait par : Entrée directe dans le logement
Portail / portes à franchir entre la voiture et l'entrée du logement : Non
Rétrécissement < 90 cm sur le chemin d'accès : Non
Couloir pour accéder au logement : Non
Virages dans le couloir : Non
Largeur de passage au point le plus étroit du chemin d'accès (avant la porte d'entrée du logement) en cm : 305
Nombre de marches < 130 cm de profondeur (pour le groupe qui comporte le plus de marches) : 0
Nombre de marches > 130 cm de profondeur (pour le groupe qui comporte le plus de marches) : 0
Autre(s) obstacle(s)/seuil à franchir : Oui
Hauteur de l'obstacle/seuil en cm : 7
Main courante sur au moins un côté des marches : Non
Rampe d'accès : Non
Etage : Rez de chaussée
Ascenseur : Non mais pas besoin pour accéder au logement
Largeur de l'intérieur en cm : 0
Profondeur de l'intérieur en cm : 0
Largeur de l'ouverture des portes en cm : 0
Hauteur des boutons (à l'interieur) comprise entre 90 et 130 cm : Oui
L'entrée la plus accessible du logement est : Entrée principale
Nombre de marches < 130 cm de profondeur : 0
Nombre de marches > 130 cm de profondeur : 0
Autre(s) obstacle(s)/seuil à franchir : Non
Hauteur de l'obstacle/seuil en cm : 0
Si le seuil forme une petite marche à l'extérieur, sa profondeur en cm est de : 0
Main courante sur au moins un côté des marches : Pas de marches
Rampe d'accès : Pas de marches
Largeur de passage des portes en cm : 92
Ouverture possible de l'extérieur pour les entrées secondaires : Oui
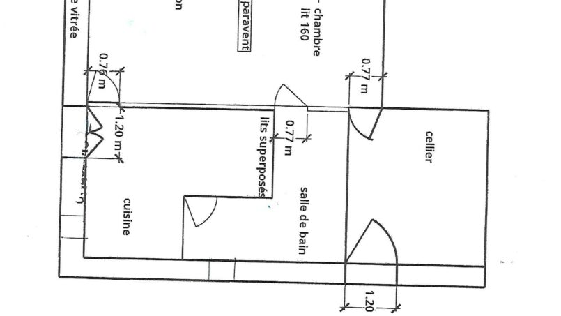
Commentaire : Possibilité de passer par les baies vitrées : - Baie vitrée de la cuisine : 110cm de passage (deux battants ouverts) et un seuil de 6cm - Baie vitrée du salon : 105 cm de passage et un seuil de 4cm
Nombre de marches : 0
Main courante sur au moins un côté des marches : Pas de marches
Présence d'une porte : Oui
Couloir pour accéder à la cuisine : Non
Virages dans le couloir : Non
Largeur de passage en cm à l'endroit le plus étroit (couloir, virages, porte) : 120
Aire de rotation (150 cm diamètre) : Oui
Espace libre sous l'évier : Non
Espace libre sous le plan de cuisson : Non
Hauteur four / micro ondes en cm : 150
Hauteur rangement ustensiles et vaisselle en cm : 91
Fenêtre accessible à un fauteuil roulant (passage d'au moins 90 cm et hauteur de poignée <130 cm) ? : Oui
Interrupteurs accessibles pour une personne en fauteuil roulant (hauteur <130 cm) ? : Oui
Commentaire : Possibilité de déplacer le micro-ondes sur le plan de travail
Pièce dans laquelle se trouve la table pour manger : Cuisine et terrasse
Hauteur du plateau de la table > 80 cm : Non
Espace sous la table d'au moins 65 cm de hauteur, 60 cm de largeur et 30 cm de profondeur : Oui
Largeur de passage, en cm, pour accéder à la table : 120
Commentaire : Mesures données pour la table située dans la cuisine, une table est présente sur la terrasse à l'extérieur
Nombre de marches : 0
Main courante sur au moins un côté des marches : Non
Présence d'une porte : Oui
Couloir pour accéder à la pièce à vivre : Non
Virages dans le couloir : Non
Largeur de passage en cm à l'endroit le plus étroit (couloir, virages, porte) : 110
Aire de rotation (150 cm de diamètre) : Oui
Largeur du passage pour accéder à la TV, en cm : 110
Fenêtre accessible à un fauteuil roulant (passage d'au moins 90 cm et hauteur de poignée <130 cm) ? : Oui
Interrupteurs accessibles pour une personne en fauteuil roulant (hauteur <130 cm) ? : Oui
Nombre de marches : 0
Main courante sur au moins un côté des marches : Pas de marches
Largeur de passage de la porte (ou de l'entrée) en cm : 77
Couloir pour accéder à l'espace couchage : Non
Virages dans le couloir : Non
Largeur de passage à l'endroit le plus étroit, couloir / virages, en cm : 110
Type d'espace : Couchage dans pièce à vivre
Nombre de couchages dans cet espace : 2
Répartition des couchages dans cet espace (nombre de lits simples, doubles, superposés...) : 1 lit double 160x200 dans la pièce à vivre, caché par un meuble en rotin ( voir photos). un lit superposé dans une alcôve de la cuisine
Dimensions du lit le plus accessible (lxLxH) en cm : 160 x 200 x 50
Largeur du passage, en cm, pour accéder à ce lit : 80
Possibilité de déplacer le(s) couchage(s) de manière à agrandir la largeur de passage : Oui
Dans ce cas, largeur de passage possible, en cm : 120
Présence d'un lit médicalisé ou possibilité d'en ajouter un (215 cm*97 cm), tout en laissant un espace d'au moins 75 cm pour y accéder: Oui
Aire de rotation (150 cm de diamètre) : Oui
Fenêtre accessible à un fauteuil roulant (passage d'au moins 90 cm et hauteur de poignée <130 cm) ? : Oui
Interrupteurs accessibles pour une personne en fauteuil roulant (hauteur <130 cm) ? : Oui
Commentaire : Un lit médicalisé, si loué par vos soins, peut être installé dans le salon pour plus de place
Nombre de marches : 0
Main courante sur au moins un côté des marches : Pas de marches
Largeur de passage des portes/entrée en cm : 78
Couloir pour accéder à l'espace couchage : Non
Virages dans le couloir : Non
Largeur de passage à l'endroit le plus étroit, couloir / virages, en cm : 110
Commentaire : Lits superposés situés dans une alcôve de la cuisine
Type d'espace : Espace de couchage isolé (recoin) ouvert
Répartition des couchages dans cet espace (nombre de lits simples, doubles, superposés...) : 2 lits superposés
Dimensions du lit le plus accessible (lxLxH) en cm : 90x190x50
Largeur du passage, en cm, pour accéder à ce lit : 120
Possibilité de déplacer le(s) couchage(s) de manière à agrandir la largeur de passage : Non
Dans ce cas, largeur de passage possible, en cm : 0
Présence d'un lit médicalisé ou possibilité d'en ajouter un (215 cm*97 cm), tout en laissant un espace d'au moins 75 cm pour y accéder: Non
Fenêtre accessible à un fauteuil roulant (passage d'au moins 90 cm et hauteur de poignée <130 cm) ? : Oui
Interrupteurs accessibles pour une personne en fauteuil roulant (hauteur <130 cm) ? : Oui
Aire de rotation (150 cm de diamètre) : Non
Commentaire : Possibilité de déplacer l'échelle pour avoir plus de place dans l'installation
Nombre de marches : 0
Largeur de passage des portes/entrée en cm : 0
Largeur de passage à l'endroit le plus étroit, couloir / virages, en cm : 0
Largeur du passage, en cm, pour accéder à ce lit : 0
Dans ce cas, largeur de passage possible, en cm : 0
Nombre de marches : 0
Largeur de passage des portes/entrée en cm : 0
Largeur de passage à l'endroit le plus étroit, couloir / virages, en cm : 0
Largeur du passage, en cm, pour accéder à ce lit : 0
Dans ce cas, largeur de passage possible, en cm : 0
Présence d'une baignoire : Oui
Présence d'une douche : Oui
Présence d'une douche italienne : Oui
Si une ou plusieurs douches, hauteur du ressaut le moins élevé en cm : 0
Commentaire : douche à l'italienne 150 cm de rotation. Tabouret de douche amovible
Nombre de marches : 0
Main courante sur au moins un côté des marches : Pas de marches
Largeur de passage de la porte en cm : 77
Couloir pour accéder à la salle de bain : Non
Virages dans le couloir : Non
Largeur de passage à l'endroit le plus étroit (couloir / virages) en cm : 110
Commentaire : Accès à la sdb wc depuis la pièce à vivre et depuis la cuisine
Type d'installation : Baignoire et douche italienne
Largeur de passage, en cm, pour accéder à la baignoire / douche : 83
Barre d'appui dans la baignoire/douche : Oui
Présence d'un pare-douche si baignoire: Non
Hauteur en cm du ressaut de la douche : 0
Aire de rotation (150 cm diamètre) dans la douche : Oui
Siège douche intégré ou chaise douche à roulettes : Oui
Largeur de l'entrée de la douche en cm : 150
Largeur de l'intérieur de la douche en cm : 150
Profondeur de l'intérieur de la douche en cm : 170
Hauteur robinetterie dans la douche (en cm): 85
Aire de rotation (150 cm diamètre) dans la salle de bain : Oui
Espace vide sous le lavabo : Oui
Hauteur du lavabo (du sol au dessus du lavabo) en cm : 83
Fenêtre accessible à un fauteuil roulant (passage d'au moins 90 cm et hauteur de poignée <130 cm) ? : Oui
Interrupteurs accessibles pour une personne en fauteuil roulant (hauteur <130 cm) ? : Oui
Commentaire : 150cm entre les deux murs côté cuisine lavabo wc : 170 possible d'enlever la planche pour passage sous lavabo
Nombre de marches : 0
Largeur de passage de la porte en cm : 0
Largeur de passage à l'endroit le plus étroit (couloir / virages) en cm : 0
Largeur de passage, en cm, pour accéder à la baignoire / douche : 0
Hauteur en cm du ressaut de la douche : 0
Largeur de l'entrée de la douche en cm : 0
Largeur de l'intérieur de la douche en cm : 0
Profondeur de l'intérieur de la douche en cm : 0
Hauteur robinetterie dans la douche (en cm): 0
Hauteur du lavabo (du sol au dessus du lavabo) en cm : 0
Nombre de marches : 0
Main courante sur au moins un côté des marches : Pas de marches
Largeur de passage de la porte en cm : 77
Couloir pour accéder aux toilettes : Non
Virages dans le couloir : Non
Largeur de passage à l'endroit le plus étroit (couloir / virages) en cm : 110
Commentaire : Les WC sont situés dans la salle de bain
Hauteur de la cuvette en cm : 42
Espace à côté de la cuvette, de 80 cm de largeur et 130 cm de profondeur : Oui
Aire de rotation (150 cm de diamètre) : Oui
Barre d'appui latérale : Oui
Interrupteurs accessibles pour une personne en fauteuil roulant (hauteur <130 cm) ? : Oui
Largeur de passage de la porte en cm : 105
Présence d'un seuil : Oui
Hauteur du seuil en cm : 4
Si le seuil forme une petite marche à l'extérieur, sa profondeur en cm est de : 0
Commentaire : Possibilité de passer par la baie vitrée de la cuisine : 110cm de passage (deux battants ouverts) et 6cm de seuil Ou de passer par la porte d'entrée et de faire le tour : 92 cm de passage mais pas de seuil
Balcon/terrasse d'au moins 90 cm de large et 130 cm de profondeur : Oui
Aire de rotation (150 cm de diamètre) : Oui
Commentaire : Terrasse commune de l'espace sous l'abri. Voir photos
Nombre de marches inévitables < 130 cm de profondeur (pour le groupe qui comporte le plus de marches) : 0
Nombre de marches inévitables > 130 cm de profondeur (pour le groupe qui comporte le plus de marches) : 9
Main courante sur au moins un côté des marches : Pas de marches
Rampe d'accès : Non
Passage par l'extérieur inévitable : Oui
Revêtement : Stable/régulier
Pente du chemin d'accès <5% : Oui
Possibilité de faire une pause sur le chemin (banc, muret…) : Non
Ascenseur pour accéder à l'espace piscine : Pas de marches
Largeur intérieur ascenseur en cm : 0
Profondeur intérieur ascenseur en cm : 0
Largeur ouverture des portes de l'ascenseur en cm : 0
Couloir pour accéder à la piscine : Non
Virages dans le couloir : Non
Portes intermédiaires ou portillon : Oui
Largeur de passage au point le plus étroit sur le chemin d'accès, en cm : 105
Autre(s) obstacle(s)/seuil à franchir : Oui
Hauteur de l'obstacle/seuil en cm : 17
Commentaire : 9 marches de 17cm sont à franchir pour accéder à la piscine
Présence d'un pédiluve : Non
Hauteur du ressaut du pédiluve en cm : 0
Passage possible d'un fauteuil roulant à côté du pédiluve : Non
Largeur minimum du passage, en cm, pour accéder au bassin : 0
Système d'aide à la mise à l'eau : Non
Profondeur du bassin au point le moins profond en cm : 140
Commentaire : Bassin à fond plat
Couchages dans Chambre(s)
Chambre 1
1 Lit double 160
1 Lit superposé
Caractéristiques
Divers
Accès Wi-fi
Air conditionné
Draps inclus
Linge de toilette inclus
Logement fumeur
Ménage inclus
Vue mer
Équipements extérieurs
Balcon/Terrasse
Barbecue
Jacuzzi/Sauna
Jardin
Mobilier de jardin
Parking
Piscine
Terrain clos
Équipements intérieurs
Chaise haute
Cheminée/Poêle
Fer à repasser
Four/Micro ondes
Lave linge
Lave vaisselle
Lit bébé
Sèche cheveux
Sèche linge
Télévision
Adresse du bien
Adresse: Les informations de localisation exactes sont fournies après la confirmation d'une réservation.
Quartier :
Pays: France
État: Montségur sur Lauzon
Code postal: 26130
Pays: France

Sur la carte

Disponibilité

mai 2026
L M M J V S D
 1
130 €
2
130 €
3
130 €
4
125 €
5
125 €
6
125 €
7
125 €
8
130 €
9
130 €
10
130 €
11
125 €
12
125 €
13
125 €
14
125 €
15
130 €
16
130 €
17
130 €
18
125 €
19
125 €
20
125 €
21
125 €
22
130 €
23
130 €
24
130 €
25
125 €
26
125 €
27
125 €
28
125 €
29
130 €
30
130 €
31
130 €
juin 2026
L M M J V S D
1
125 €
2
125 €
3
125 €
4
125 €
5
130 €
6
130 €
7
130 €
8
125 €
9
125 €
10
125 €
11
125 €
12
130 €
13
130 €
14
130 €
15
125 €
16
125 €
17
125 €
18
125 €
19
130 €
20
130 €
21
130 €
22
125 €
23
125 €
24
125 €
25
125 €
26
130 €
27
130 €
28
130 €
29
125 €
30
125 €
 
passé
aujourd’hui
réservé
Conditions particulières
Tabagisme autorisé
Animaux domestiques autorisés
Fête autorisée
Enfants autorisés
a) annulation à plus de 21 jours avant la prise d’effet du bail : le propriétaire conserve 30% du montant perçu
b) annulation à moins de 21 jours avant la prise d’effet du bail : pas de remboursement possible à titre de clause pénale, sauf raison médicale.
c) si le locataire ne se manifeste pas dans les 24 heures qui suivent la date d’arrivée indiquée sur le contrat, le dit contrat devient nul et le bailleur peut disposer de son gîte. Le prix de la location reste acquis au bailleur.
d) si le séjour est écourté, le prix de la location reste acquis au bailleur. Il ne sera procédé à aucun remboursement.
Caution de 500€ par chèque à l'arrivée
Les animaux sont les bienvenus avec un supplément (pour 2 animaux maximum)
Une fois la réservation finalisée sur ce site, le propriétaire enverra un contrat à retourner signé sous 3 jours après réception, ainsi qu'une attestation d'assurance villégiature et une copie de votre carte d'identité. En cas de différence entre ce contrat et les Conditions Générales du Site, ce sont les Conditions Générales du site qui prévalent.
pour 1 nuit en basse saison 95 € par nuit
×

Envoyer une demande de réservation

Voyageurs
Adultes
18 ans ou plus
0
Enfants
2 à 12 ans
0
Bébés
Moins de 2 ans
0
Fermer
1 animal
2 €
Par nuit
2 animaux
4 €
Par nuit

Ajouter aux favoris
Contacter le propriétaire
Partager
Contacter le propriétaire
x
pour 1 nuit en basse saison 95 € par nuit